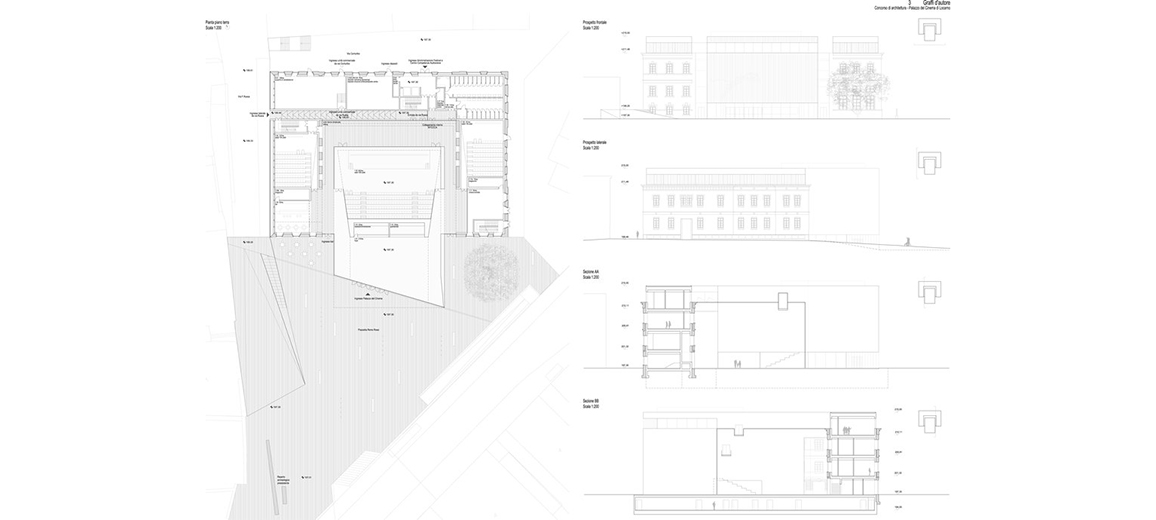
CONCETTO │ Il progetto proposto nasce dalla volontà di voler preservare parte dell’edificio esistente che verrà riqualificato e trasformato e dalla necessità di creare maggiori superfici rispetto a quelle esistenti, in risposta alle nuove esigenze del Festival del cinema di Locarno. Rispetto alla configurazione attuale, è stato deciso di preservare, come memoria storica del patrimonio architettonico ed artistico di fine Ottocento e inizio Novecento, le facciate dell’edificio originale a ferro di cavallo realizzato nel 1892-94 su progetto dell’arch. Ferdinando Bernasconi sr. ed eliminare l’ampliamento risalente agli anni ’30 degli architetti Rianda e Respini che di fatto chiudeva l’edificio a U trasformandolo in un edificio a corte interna. Il grande vuoto che si viene a creare all’interno dell’edificio ad U a seguito della demolizione viene riempito da un nuovo volume sobrio, elegante e dal linguaggio architettonico contemporaneo. Il nuovo edificio prospiciente piazzetta Remo Rossi rimane staccato dalla preesistenza ma ne diventa il suo elemento di necessaria complementarietà. Attraverso i richiami di altezze, materiali e riferimenti al sedime della parte demolita, il rimando tra il vecchio ed il nuovo è continuo. La presenza di un distacco tra i due edifici, che si allarga quasi a diventare una corte nella parte centrale interna, ne sottolinea la differente genesi e struttura, mentre il grande lucernario che copre questo distacco riduce la cesura e fa di due edifici apparentemente indipendenti un’unica entità energetica e climatizzata, unificata ancor più dall’estrema permeabilità e flessibilità degli spazi e delle funzioni interne. > leggi tutto
© Chapman Taylor Architetti Srl
PALAZZO DEL CINEMA
Capogruppo│Chapman Taylor Architetti Srl
Gruppo di progettazione
– Chapman Taylor Architetti
– Alessandro Stroligo
– Margherita Napolitano
– Maurizia Sola
– Saskia Mrazek architect
Consulente strutture│Studio Mantegazza & Cattaneo
Data concorso│Luglio 2012
CONCORSO DI ARCHITETTURA Palazzo del Cinema – LOCARNO
CONCORSO DI ARCHITETTURA Palazzo del Cinema – LOCARNO
CONCORSO DI ARCHITETTURA Palazzo del Cinema – LOCARNO
CONCORSO DI ARCHITETTURA Palazzo del Cinema – LOCARNO
CONCORSO DI ARCHITETTURA Palazzo del Cinema – LOCARNO
CONCORSO DI ARCHITETTURA Palazzo del Cinema – LOCARNO
CONCORSO DI ARCHITETTURA Palazzo del Cinema – LOCARNO
CONCORSO DI ARCHITETTURA Palazzo del Cinema – LOCARNO
CONCORSO DI ARCHITETTURA Palazzo del Cinema – LOCARNO
CONCORSO DI ARCHITETTURA Palazzo del Cinema – LOCARNO
<
>
© 2023 Saskia Mrazek Architect – All rights reserved – webdesign: architecturevisualdesign.ch
Saskia Mrazek Architect dipl. arch. USI-MBA membro SIA-OTIA-REG A | Via A. Ciseri 17 | 6601 Locarno | T +41 91 751 32 27 | info@saskiamrazek.ch